基本情況
裝修風格:美式風格
外框面積:135㎡
空間格局:3室2廳2衛
業主是個內心極其追逐時尚的女性,既希望有家的溫馨舒適,又希望有時尚主題的表現。在整體基礎風格定調到美式的時候,設計師也不斷的嘗試把豐富的色彩融入其中,以追求低調個性中的張揚。麻雀雖小,五臟俱全”,整體空間雖小,但功能俱全,大面的亮色使空間有較強的延伸感,恰到好處的大版面分割給予各功能區的融合與連貫性,讓小宅也有大驚喜。

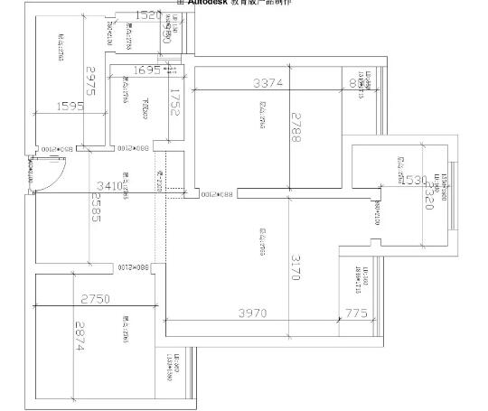
原始結構圖
戶型分析:
1、入戶就是餐廳,沒有玄關,進出以及儲物都不方便,采光不佳。
2、次臥面積小,放置床、書桌、衣柜比較局促。
3、客廳電視背景墻太短。
戶型優化:
1、入戶靠墻設計整墻的收納柜,增加儲物功能。
2、次臥定制榻榻米和衣柜,高效利用空間。
3、電視背景墻一側的臥室門做隱形門處理,增加電視背景墻的視覺感。
入戶既是餐廳,為了增加儲物空間,方便進出,入戶右邊靠墻做滿整墻的柜子,中間留空,既是鞋柜也是收納柜。
客廳采用吊頂加筒燈加燈帶三種光源設計,美式吊燈素雅大氣,筒燈設計讓空間光源分布更加均勻,燈帶選擇4000K的色溫,營造溫馨的氣氛。
客廳地面使用的是仿古地磚,淡黃色的質感,即溫馨又能體現懷舊的情懷。美式風格的裝修中經常會用到仿古的元素。
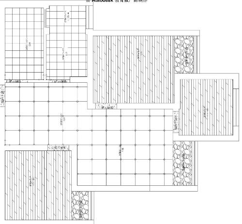
地面鋪裝圖

電視背景墻是用藍色乳膠漆、白色乳膠漆兩種,搭配石膏線造型來裝飾。考慮到小戶型的收納問題,留出足夠的動線后,盡量選擇了一款儲物空間夠多的電視柜。
從客廳看向餐廳,通鋪的淡黃色地磚既溫馨又自由舒適的感覺。斗柜的設計盡可能的增加空間的收納能力。家居有的是在網上買的,有的是在實體店買的,購買的時候保持了色系的統一,以免破壞裝修的整體效果。
從餐廳看向客廳,陽臺原本是一小塊的凸出去的區域,設計成飄窗,裝飾上浪漫的窗幔和布藝,客廳里一道浪漫的風景線。
沙發背景墻是藍色的乳膠漆背景墻,白色的石膏線,藍白經典配色清新舒適。
餐廳

餐廳區域比較狹窄,正好放下四人餐桌,滿足一家人的生活所需。
餐廳也是吊燈加燈帶家筒燈的光源設計改善餐廳采光不足。
白色實木餐桌,看起來普通,在使用過程中才能體會到它的魅力,質感非常好,重量也不輕,值得注意的是,吃飯的時候是不是會給下面的住戶產生噪音。
主臥的設計和整體空間保持一致,石膏線加乳膠漆背景墻,唯美浪漫的飄窗,非常的小清新。
美式風格的家具都是經典耐看的,工藝精致的床架和床頭柜,經典的美式風格。
飄窗上用布藝裝飾,柔軟舒適,白色窗紗藍色布藝,清爽舒適。
次臥做了書房,同時設計了榻榻米,可以作為臨時的客房來使用。延續了白色柜子的風格,與整體比較統一。
廚房面積小,L型操作臺盡可能多的操作空間。白色櫥柜加石英石臺面清爽干凈。仿古地磚墻磚,溫馨舒適的空間設計。
設計永遠是為生活服務的,生活的細節不僅是家居的實用舒適性,還包括顏色的調配,每天生活的空間,自己喜歡的顏色,必然會帶來不一樣的心情。顏色的選擇也是設計重要的一環,筑家的路程,必然色彩紛呈。